Pearl Public
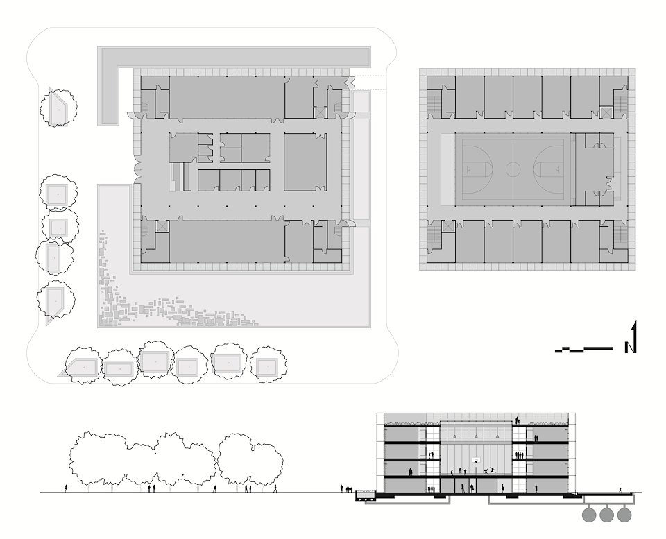
A school is for the public, but how can a school establish this connection? By taking design cues from the only true public space in the urban grid, the public park. The finished product is not an unapproachable addition to the urban edge, but a public space embracing a public school.
Sited in the Pearl District of Portland, OR, the design creates an icon for the community within a stretch of public parks. By letting the design become a work of art it becomes approachable to all.
The double glazed wall system naturally ventilates and insulates the building, giving the modern glass box a new identity as sustainable.
Role |
Designer |
For |
Ball State University |
Date |
2011 |
Type |
Educational |








